Se stai cercando di trovare un po ‘di spazio extra per lo stoccaggio, o vuoi un modo interessante per aggiungere un po’ più spazio di vita alla vostra proprietà, allora si dovrebbe considerare uno dei nostri piani di garage. Abbiamo disegni che sono indipendenti, così come quelli che sono attaccati agli spazi abitativi. Ma l’unica cosa che tutti offrono è un serio fascino del marciapiede e praticità.
Non accontentatevi di uno spazio extra che non offre il tipo di versatilità e funzionalità che un progetto di layout del garage può offrire. Abbiamo messo insieme una lista di alcuni dei migliori piani di design e layout di garage che abbiamo, ma assicuratevi di controllare la nostra intera collezione. Se ne trovi uno che ti interessa, contatta un rappresentante di Houseplans al 1-800-913-2350.
- Piano garage stile country
- Craftsman Garage Design
- Prairie Style Garage Layout
- Piano garage stile tradizionale
- Country Style Garage
- Farmhouse Garage Plan
- Piano garage stile tradizionale
- Piano Garage Tradizionale
- Piano tradizionale per garage e abitazione
- Piano garage stile country e spazio abitativo con due camere da letto
- Piano 118-124
- Craftsman Home with Ultra-Spacious Garage
- Piano garage contemporaneo
- Piano 23-444
- Traditional Style Garage Design
- Cute Country Style Garage and Living Area
- Country Style Three-Story House and Garage Plan
- Piano garage/abitazione a due piani in stile contemporaneo
- Stile Ranch Studio e Garage
- Piano tradizionale a due piani per garage e abitazione
- Piano casa tradizionale con due camere da letto e ampio spazio per il garage
- Un appartamento con una camera da letto si trova sopra il garage
- Cottage Style Garage and Living Plan
- Country Style Garage and Rec Room Design
Piano garage stile country
Un modo semplice per ospitare quattro veicoli
Piano 75-205
Cercando spazio extra? Troverai un sacco di spazio per lo stoccaggio con questo garage per quattro auto (piano 75-205, sopra). Con spazio per un RV, la vostra casa per le vacanze è ben protetta. È anche possibile accedere al garage attraverso la porta del primo piano e salire le scale al secondo piano. Qui troverete molto spazio per riporre quasi tutto. Le tre finestre frontali offrono anche un bel tocco.

Craftsman Garage Design
Un modo classico per conservare i veicoli
Piano 124-1050
Se stai cercando un piano garage che offra lo stoccaggio dei veicoli e molta luce naturale, nonché un carport, il piano 124-1050 (sopra) potrebbe essere il garage per te. Offrendo 1.068 piedi quadrati di spazio, due auto possono essere ospitati all’interno e un ulteriore uno memorizzato sotto il carport. L’altezza del soffitto per il garage e il carport è di 9 piedi. Lo stoccaggio supplementare del loft è disponibile e vi si accede tramite una scala a pioli.

Prairie Style Garage Layout
C’è un sacco di spazio per i veicoli e lo stoccaggio in questo piano
Piano 124-994
Questo elegante piano garage (piano 124-994, sopra) offre 1,968 sq ft che può essere utilizzato per memorizzare fino a quattro auto, sia all’interno che all’esterno con l’uso del carport. C’è una doppia porta del garage – a 16 piedi di larghezza a 8 piedi di altezza – che permette uno spazio generoso quando si spostano i veicoli dentro e fuori. Oltre a un’area per i veicoli, c’è anche spazio per un’officina o uno strumento di stoccaggio.

Piano garage stile tradizionale
Un garage a due piani con un sacco di spazio
Piano 22-541
Quando si cerca uno spazio garage aggiuntivo, si vuole ottenere il massimo da ogni piede quadrato in un piano. Questo garage (piano 22-541, sopra) è solo 742 piedi quadrati ma può davvero contenere molto. È possibile memorizzare tre auto al piano inferiore, ciascuno con la propria porta separata, ogni 9 piedi da 8 piedi. scale offrono accesso al secondo piano, dove troverete una quantità impressionante di stoccaggio che può essere utilizzato secondo le vostre esigenze (per suggerimenti di stoccaggio a buon mercato, controllare questo articolo da Handyman famiglia).

Country Style Garage
Un piano garage con spazio di archiviazione versatile
Piano 23-2427
Se hai bisogno di un deposito aggiuntivo per un RV o vuoi uno spazio ufficio versatile, questo piano garage (piano 23-2427, sopra) può ospitare entrambi. Il livello inferiore consente uno spazio sufficiente per tre auto, oltre a uno spazio extra lungo 40’8″ per conservare un camper o una barca. Lo spazio al secondo piano potrebbe essere utilizzato per un deposito aggiuntivo, una sala di allenamento, un ufficio, uno studio o anche un appartamento.

Farmhouse Garage Plan
Un design accattivante per il tuo garage
Piano 75-200
Questo progetto di garage (piano 75-200, sopra) sarebbe un’aggiunta sorprendente al tuo lotto, e fornisce ampio spazio per le auto così come un sacco di spazio extra ben illuminato. Il primo piano può ospitare tre auto attraverso le attraenti porte da garage in stile fienile che conducono in uno spazio garage con soffitti da 10′. L’ulteriore soppalco al secondo piano è accessibile da una scala e potrebbe funzionare come deposito, spazio di lavoro aggiuntivo o un ufficio. C’è anche un balcone fuori al lato dello spazio loft accessibile da una porta scorrevole.

Piano garage stile tradizionale
Questo piano garage è grande sullo stile
Piano 75-188
Lo stile elegante di questo piano garage (piano 75-188, sopra) potrebbe essere proprio quello che stai cercando. La porta centrale del garage è larga 10 piedi, mentre le altre due sono larghe 9 piedi e si aprono in una zona spaziosa con un soffitto alto 9 piedi. La scala posteriore conduce al loft del secondo piano con un soffitto alto 8 piedi. C’è anche una porta laterale inclusa in questa unità di 1.092 piedi quadrati per facilità di accesso.

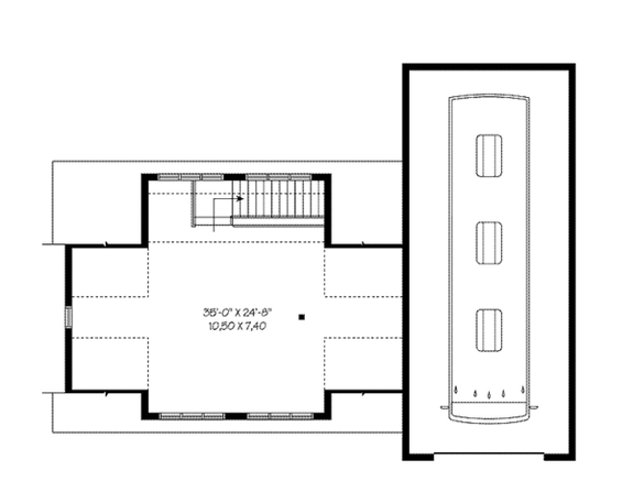
Piano Garage Tradizionale
Trova tutto lo spazio che ti serve con questo design
Piano 75-203
Se stai cercando di conservare una barca o un RV così come veicoli personali, questo garage di 1.852 piedi quadrati (piano 75-203, sopra) è una grande opzione. La porta del garage è alta 12 piedi e si apre in uno spazio che può contenere fino a due auto con un soffitto alto 9 piedi. La porta del garage RV è alta 12 piedi e si apre in uno spazio con un soffitto alto 16 piedi e 40 piedi di lunghezza. Il piano del secondo piano sarebbe ottimo per un ufficio luminoso, una stanza per l’allenamento o un deposito aggiuntivo.

Piano tradizionale per garage e abitazione
Combina lo spazio abitativo extra con il tuo piano per il garage
Piano 81-13913
Se i tuoi progetti per un garage includono spazio abitativo, allora questo piano per garage/casa da 1.220 piedi quadrati (piano 81-13913, sopra) offre alcune opzioni interessanti. Al piano terra, c’è un doppio garage e un ulteriore garage singolo, così come un comodo mezzo bagno. Il livello principale presenta un soggiorno, una zona pranzo e una cucina a forma di U – molto simile a questi piani di appartamenti per garage di Builder Online. Alla camera da letto si accede attraverso un salotto, dove troverete anche un bagno completo e un grande armadio. Questo piano può essere personalizzato per includere un ponte.

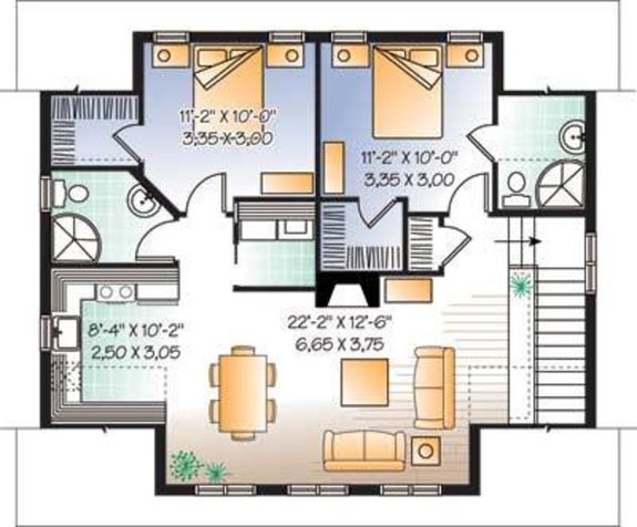
Piano garage stile country e spazio abitativo con due camere da letto
Godetevi un solo piano di vita sopra il vostro spazio garage
Piano 23-623
Questo attraente piano garage di 1.096 piedi quadrati (piano 23-623, sopra) include un ampio spazio abitativo al secondo piano. Il garage ha spazio per due auto e stoccaggio aggiuntivo per attrezzature o strumenti. C’è un ulteriore spazio portico coperto perfetto per legna da ardere o sedie all’aperto. Lo spazio abitativo al secondo piano comprende un soggiorno e una zona pranzo che sfocia direttamente nello spazio della cucina. Entrambe le camere da letto sono dotate di ampio spazio nell’armadio, e una ha accesso privato a uno dei due bagni che vengono con questo piano.

Piano 118-124
Piano 118-124
Piano 118-124 (foto sopra) funzionerebbe bene per chiunque cerchi un posto per lavorare oltre alla casa principale. Il garage ha un ampio spazio per due auto e uno spazio di lavoro che può essere adattato alle vostre esigenze. Se si sceglie di separare il garage dall’officina, questo spazio può trasformarsi in un luogo per lavorare per ore, in quanto vi è anche un bagno completo. Il soppalco al secondo piano ha un soffitto a volta e funzionerebbe bene per lo stoccaggio aggiuntivo o anche una zona di allenamento.

Craftsman Home with Ultra-Spacious Garage
Lo spazio di vita confortevole viene fornito con questo design moderno
Piano 70-1486
Godetevi la vita a un piano con questo piano (piano 70-1486, nella foto sopra), che include anche un facile accesso ai vostri garage. I due garage hanno abbastanza spazio per ospitare fino a quattro auto. Entrate in casa dal garage e troverete una camera da letto e un bagno. Come si continua in casa c’è una grande sala, sala da pranzo, cucina, bagno supplementare, e den. La camera da letto principale si trova a sinistra della pianta e comprende un bagno e una cabina armadio.

Piano garage contemporaneo
Godetevi un tocco moderno con questo layout
Piano 498-3
C’è molto fascino rustico in questo spazio garage (piano 498-3, sopra). Al livello inferiore c’è spazio per due auto e un posto aggiuntivo per lo stoccaggio. Il secondo piano vanta un ampio spazio studio che include lucernari, un angolo cottura e un bagno. Le due stanze possono essere usate come camere da letto o uffici, a seconda di come si immagina l’uso di questo piano.

Piano 23-444
Una zona giorno ariosa con un garage spazioso
Piano 23-444
Se avete bisogno di questo spazio garage per le auto o per impostare una zona di lavoro, c’è un sacco di spazio in questo layout garage a due auto (piano 23-444, sopra) che include un utile mezzo bagno. La zona giorno al secondo piano è dotata di spazio per due camere da letto che condividono l’accesso a un bagno centrale. Il soggiorno, la zona pranzo e la cucina offrono una bella vista sul garage grazie alle finestre alte. Questo piano è anche dotato di un portico laterale per una facile vita all’aperto.

Traditional Style Garage Design
Le linee pulite aggiungono al fascino di questo piano garage
Piano 47-1081
Se vi trovate ad aver bisogno di spazio extra per la famiglia, questo piano garage (piano 47-1081, sopra) è una opzione multifunzionale. Il piano inferiore offre spazio per un garage a due auto, mentre le scale danno accesso allo spazio abitativo del secondo piano. C’è una zona giorno, una cucina, una zona pranzo, e anche spazio per una lavatrice/asciugatrice e una lavastoviglie. Il bagno si trova dall’altra parte dell’appartamento, vicino alla camera da letto.

Cute Country Style Garage and Living Area
Questo piano classico è sicuro di darvi lo spazio di cui avete bisogno
Piano 47-1090
Godetevi il facile accesso al vostro spazio vitale adiacente al garage a due auto che può includere fino a due banchi da lavoro. Nella parte principale della casa, troverete una zona pranzo, soggiorno e cucina. Ci sono due camere da letto, una con un bagno privato completo. L’accesso al patio posteriore è fornito attraverso il soggiorno/sala da pranzo. Lo spazio di stoccaggio extra è tuo con il soppalco della soffitta in questo progetto (piano 47-1090, sopra).


Country Style Three-Story House and Garage Plan
Godetevi lo spazio offerto con questo piano ispirato alla fattoria
Piano 124-1052
Questo piano (piano 124-1052, sopra) è dotato di molto spazio per soddisfare le vostre esigenze di stoccaggio e di vita. La doppia porta del garage offre l’accesso a un’area che può contenere fino a tre veicoli. L’ingresso sul lato sinistro dà accesso a due camere da letto e un bagno, mentre l’altro lato del piano terra contiene spazio per due uffici. Passando al secondo piano, c’è una sala giochi a volta e due loft di stoccaggio. Il terzo piano contiene un appartamento con una camera da letto e un bagno, con spazio sufficiente per una zona giorno e una cucina completa. Fuori dalla zona giorno c’e’ l’accesso ad un ponte coperto.

Piano garage/abitazione a due piani in stile contemporaneo
Un piano moderno con due garage
Piano 932-46
Questo affascinante garage e spazio abitativo (piano 932-46, sopra) e’ dotato di due porte garage separate situate sotto un balcone e ponte al secondo piano. Alla zona giorno principale si accede tramite un’entrata laterale al piano terra che porta ad una scala. Qui troverete la cucina, la zona giorno e la vista sul grande balcone. La camera da letto ha un balcone/ponte privato, una cabina armadio e un ingresso privato al bagno.

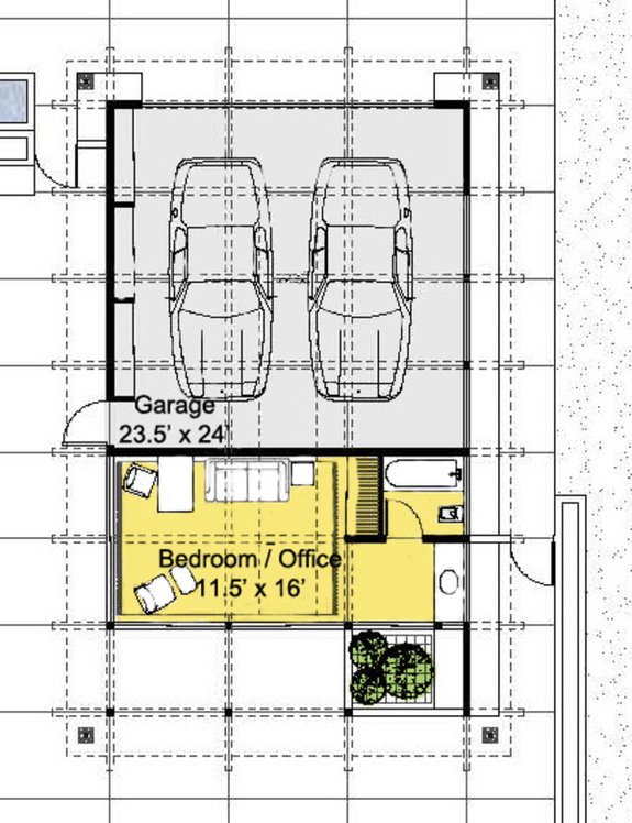
Stile Ranch Studio e Garage
Un modo semplice per combinare garage e spazio abitativo
Piano 544-4
Avere uno spazio extra per una camera da letto o un ufficio staccato dalla casa principale è un modo semplice per garantire la privacy. Il garage a due auto (piano 544-4, sopra) si adatta bene allo spazio abitativo aperto incorniciato dalle finestre. Questo piano garage/abitazione include anche un bagno completo nei suoi 920 piedi quadrati di spazio.

Piano tradizionale a due piani per garage e abitazione
Un portico coperto al secondo piano è una gradita aggiunta a questo layout
Piano 23-442
C’è più spazio di quanto si possa pensare in questo edificio a due piani (piano 23-442, sopra). Il piano inferiore ospita un garage che è 42 piedi di lunghezza, se avete bisogno di tenere una barca o anche un piccolo RV. Un’entrata separata del garage porta ad uno spazio per altri piccoli veicoli o attrezzature da giardino, con un mezzo bagno qui per comodità. Al secondo piano ci sono due camere da letto, un bagno completo, una cucina e spazio per un soggiorno e una zona pranzo. L’accesso al portico coperto e alla griglia/ponte del sole si trova vicino alla posizione della lavatrice/asciugatrice.

Piano casa tradizionale con due camere da letto e ampio spazio per il garage
Questo e’ un piano spazioso con tre garage
Piano 22-404
Questo piano casa e garage accogliente (piano 22-404, sopra) offre due camere da letto e una vita confortevole. Il primo piano contiene un garage con una doppia porta e un ingresso a porta singola e può contenere fino a tre auto. C’è un’area per ulteriori depositi sul retro. Su per le scale troverete due camere da letto, un bagno, una cucina con un angolo per la colazione e una sala familiare. La cucina e la sala familiare sono divise da una zona per una lavatrice/asciugatrice e una dispensa.

Un appartamento con una camera da letto si trova sopra il garage
Un affascinante garage/soggiorno che include un ponte
Piano 47-1075
Questo spazio (piano 47-1075, sopra) potrebbe funzionare bene come un ospite, una suocera o un appartamento in affitto. Il primo piano contiene due porte di garage e può ospitare due veicoli. Usando le scale esterne per accedere all’appartamento, troverete una zona giorno aperta – con accesso alla terrazza – e una zona pranzo che sfocia nella cucina. Oltre la cucina c’è un bagno completo e una camera da letto con un armadio spazioso (guarda questo fresco appartamento garage rimodellato da Apartment Therapy).

Cottage Style Garage and Living Plan
Un accogliente garage a due auto con un patio e un ponte
Piano 917-10
Questo attraente piano garage e appartamento con una camera da letto (piano 917-10, sopra) offre molto spazio per lo stoccaggio. Nella parte posteriore del garage a due auto c’è uno spazio sopraelevato perfetto per uno spazio di lavoro o di stoccaggio aggiuntivo. Passando attraverso il patio si raggiunge la scala – con lo stoccaggio sotto di essa – per il ponte del secondo piano e l’ingresso. All’interno troverete un soggiorno familiare, un angolo cottura, una camera da letto, un bagno e un ulteriore mezzo bagno.

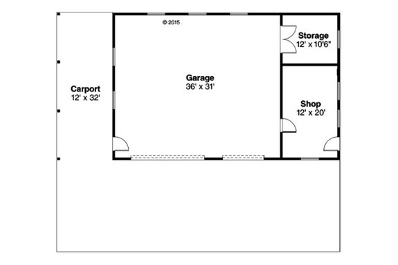
Country Style Garage and Rec Room Design
Un modo semplice per ottenere ulteriori opzioni di stoccaggio
Piano 124-1068
Questo progetto di garage (piano 124-1068, sopra) è il modo perfetto per ospitare fino a quattro auto, o un modo spazioso per due o tre. Sopra il garage c’è una soffitta accessibile da una scala. A sinistra del garage c’è una grande sala di ricreazione che include lo spazio per un bagno completo. Un patio coperto a volta fornisce un ottimo posto per aggiungere alcuni mobili all’aperto o una griglia.

A seconda delle vostre esigenze, questi piani garage possono offrire spazio extra per veicoli e strumenti, o fornire aree aggiuntive per vivere e lavorare. Se sei curioso di saperne di più su questi progetti, contatta un rappresentante di Houseplans per maggiori informazioni al 1-800-913-2350.